SCIA ENGINEER
Skip navigation
Projects
References
About Us
Contact
Skip navigation
Legal
| Deutsch
Consultancy
Design
Optimisation
Submission
Building physics
Statics/Dynamics
Execution planning
Habitation + Living
Projects
>
Special structures
>
Advertising and facades
>
Expo-Event 2001-2004
>
Details: Expo-Event 2001-2004
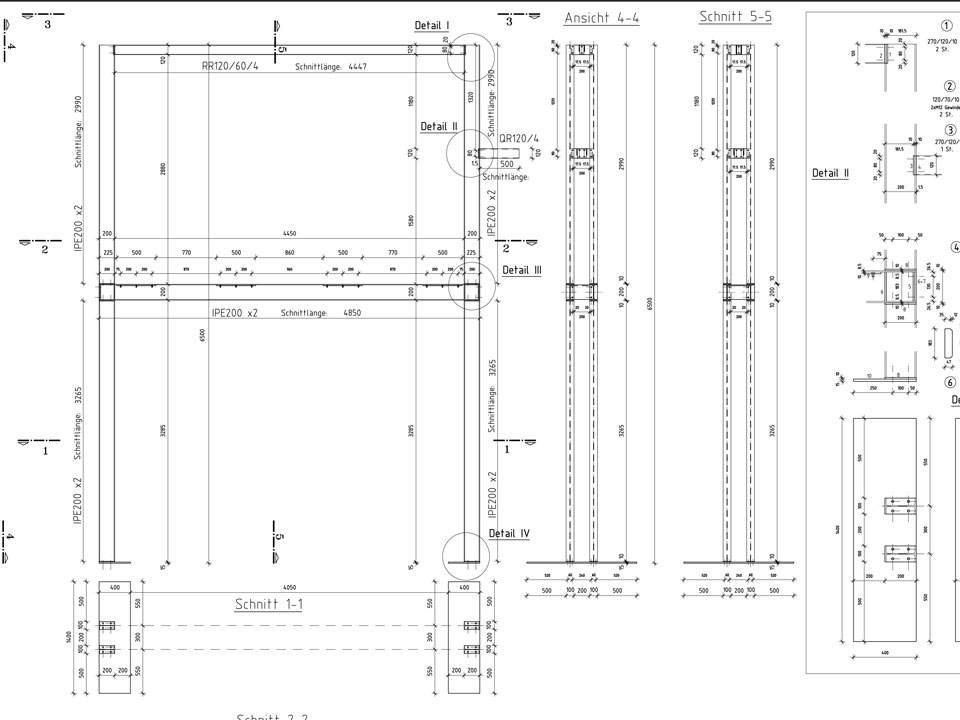
Please click on one of the pictures to open the full size gallery.
<<
Go back